Extension d’une maison à Arbonne-la-Forêt
Mission partielle (limité au dossier de consultation des entreprises)
La famille souhaite faire construire une extension implantée entre la maison existante et le débarras afin de créer une buanderie, une salle d’eau et une entrée principale à la maison permettant de l’orienter vers l’est de la parcelle.
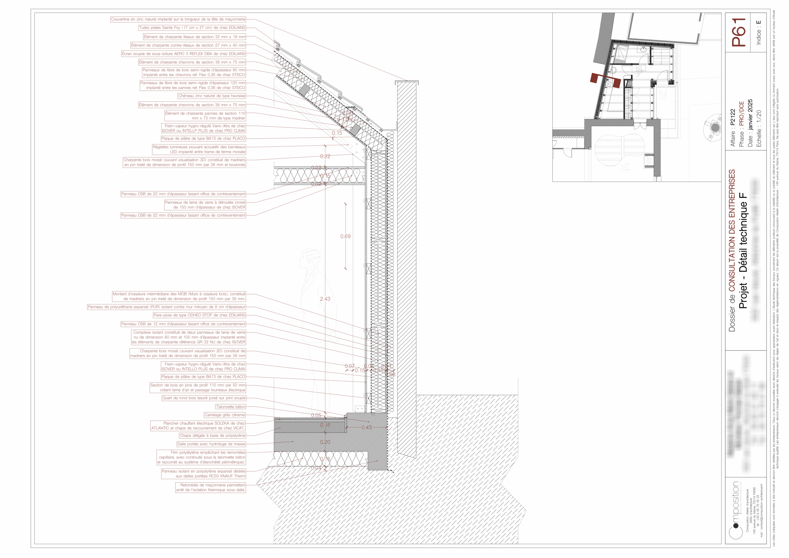
Le bâtiment a deux pans de toiture développe une superstructure en bois conçu avec une trame dense de fermes de charpente moisées créant un rythme visible depuis l’intérieur et l’extérieur du bâtiment et faisant office de support de la mezzanine. Le projet développe une écriture architecturale contemporaine avec la mise en œuvre de fermes de charpente moisées régulières et un bardage bois vertical, ainsi qu’une couverture à deux pans plus traditionnelle, réalisée avec des tuiles plates de terre cuite petit moule commune dans la région.
Le projet se veut résolument un projet d’architecture contemporaine commune qui s’intègre dans le patrimoine architectural rural avoisinant.
Plaquette de présentation du projet.
Extension d’une maison à Arbonne-la-Forêt
Mission partielle (limité au dossier de consultation des entreprises)
La famille souhaite faire construire une extension implantée entre la maison existante et le débarras afin de créer une buanderie, une salle d’eau et une entrée principale à la maison permettant de l’orienter vers l’est de la parcelle.
Le bâtiment a deux pans de toiture développe une superstructure en bois conçu avec une trame dense de fermes de charpente moisées créant un rythme visible depuis l’intérieur et l’extérieur du bâtiment et faisant office de support de la mezzanine. Le projet développe une écriture architecturale contemporaine avec la mise en œuvre de fermes de charpente moisées régulières et un bardage bois vertical, ainsi qu’une couverture à deux pans plus traditionnelle, réalisée avec des tuiles plates de terre cuite petit moule commune dans la région.
Le projet se veut résolument un projet d’architecture contemporaine commune qui s’intègre dans le patrimoine architectural rural avoisinant.
Plaquette de présentation du projet.
Et si nous composions ensemble !
• 149 avenue du Maine, 75014 Paris
• contact@composition-architecture.fr
• +33 6 65 76 42 22
Et si nous composions ensemble !
• 149 avenue du Maine, 75014 Paris
• contact@composition-architecture.fr
• +33 6 65 76 42 22


